Capannone in affitto

Verdellino, Corso Italia - Zingonia
1 locale 1 locale
630 Mq 630 Mq
1 bagno 1 bagno

Capannone in affitto

Verdellino, Corso Italia - Zingonia

Descrizione annuncio

COSA SAPERE DELL'IMMOBILE

PER INFORMAZIONI ED APPUNTAMENTI CHIAMA 035.717.67.43

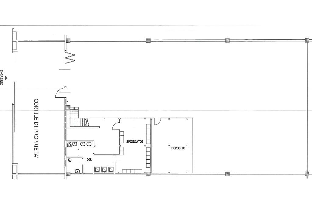
Il capannone proposto in locazione ha una superficie complessiva di circa 630 metri quadrati, di cui 180 metri quadrati di uffici. Inoltre possiede 100 metri quadrati di area esterna esclusiva.

DESCRIZIONE E PARTICOLARITA'

Il capannone misura complessivamente 630 metri quadrati, ha un’altezza interna di 7,80 metri ed è accessibile tramite un portone alto 4,30 metri. La zona adibita a capannone misura 450 metri quadrati, si sviluppa su un’unica campata ed è dotata di mensole.

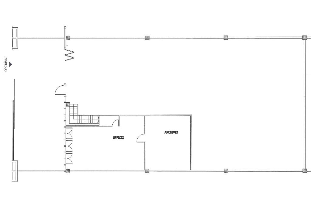
Gli uffici si sviluppano su due piani: al piano terra 65 metri quadrati e al piano primo 115 metri quadrati. L’immobile è inoltre completo di spogliatoi con un servizio igienico e tre docce.

L’ambiente è dotato di impianto elettrico, impianto di illuminazione e sistema d’allarme. La proprietà è interamente recintata e dispone di 100 metri quadrati di area esterna esclusiva.

A completamento della soluzione sono presenti uscita di emergenza con porta tagliafuoco, rilevatori antincendio con sistema antincendio a pioggia e luci di emergenza.

UBICAZIONE E CONTESTO

Il complesso è ubicato nella zona industriale del Comune di Verdellino.

Mostra tutto

Nelle vicinanze

Trasporto pubblico Trasporto pubblico
Verdello Dalmine
Verdello Dalmine
1,9 Km
Arcene
Arcene
2,6 Km
Trasporto pubblico
990 m
Osio Sotto - Centro interscambio TBSO
Osio Sotto - Centro interscambio TBSO
1,5 Km
Ricariche auto elettriche Ricariche auto elettriche
LIDL Rio Isolo
1,3 Km
Concessionario Nissan Arricar Srl
1,7 Km
Evbility Osio Sotto Campo Sportivo
2,7 Km
Scuole Scuole
Scuole
480 m
Istituto comprensivo di Verdellino
750 m
Scuola Secondaria Sandro Pertini
1,5 Km
Farmacia Farmacia
Farmacia
1,4 Km
Ospedali Ospedali
Policlinico San Marco
940 m
Istituto di Neuroriabilitazione ad Alta Complessità Habilita
1,0 Km
Supermercati Supermercati
Famila
1,1 Km
La Coccinella
1,2 Km
Lidl
1,4 Km
Conad
1,5 Km
MD
1,5 Km
Negozi Negozi
Mini Market
1,3 Km
Negozi
1,4 Km
Minimarket Chiara
1,5 Km
Bar Bar
Bar
1,3 Km
On the Road
2,3 Km
Floreo
2,4 Km
Bar Giardino
2,7 Km
Barticolare
2,8 Km
Ristoranti Ristoranti
Churahi
530 m
Trattoria Degli Amici
1,2 Km
Ristoranti
1,4 Km
Sant'Orsola Pizzeria Trattoria
1,4 Km
Da Sergio ristorante self service
1,5 Km
Mostra tutto

Caratteristiche

Rif.:
61186508
Piano:
Terra di 1
Totale piani:
1
Condizionamento:
Assente
Ascensore:
No
Riscaldamento:
Assente
Mostra tutto
Prezzo Prezzo
€ 3.000 / mese
Spese annue Spese annue
€ 0
Anche in vendita a

Classe Energetica

Questo immobile è esente da classe energetica
Anno di costruzione:
1996
Riscaldamento:
Assente

Ti interessa visionare l'immobile?

Fissa un appuntamento  Fissa un appuntamento

Richiedi informazioni

Clicca su Leggi per aprire l'informativa
* Questi campi sono obbligatori
Affiliato
Industriale Dalmine Srl
Via Provinciale, 21/A 24040 Lallio (BG)

Il nostro staff


  • Alice Cesana Zotti
    Affiliata

  • Mirko Limonta
    Collaboratore

  • Stefania Raimondi
    Coordinatrice

  • Emanuele Sussi
    Affiliato
Via Provinciale, 21/A 24040 Lallio (BG)
Zona: Stezzano - Treviolo - Dalmine - Zingonia - Osio Sotto - Osio Sopra - Boltiere
Mostra su mappa
Affiliato
Industriale Dalmine Srl
Via Provinciale, 21/A 24040 Lallio (BG)

2026 Tecnocasa Franchising S.p.A. - P. IVA 08365160152 - Via Monte Bianco 60/A 20089 Rozzano (MI). Ogni agenzia ha un proprio titolare ed è autonoma. Privacy policy | Policy utilizzo | Cookie policy