Negozio in vendita

Truccazzano, Via Aldo Moro - Albignano
€ 360.000
3 locali 3 locali
253 Mq 253 Mq
2 bagni 2 bagni

Negozio in vendita

Truccazzano, Via Aldo Moro - Albignano

Descrizione annuncio

COSA SAPERE DELL'IMMOBILE

PER INFORMAZIONI ED APPUNTAMENTI CHIAMA 02 242 2348

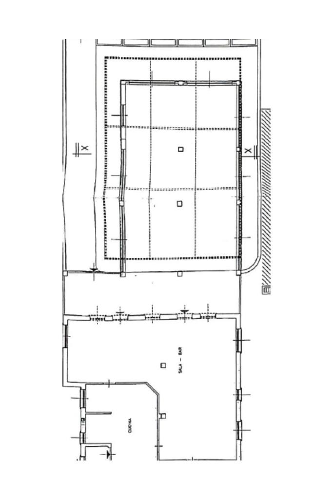
Proponiamo in vendita un negozio con superficie di 253 metri quadrati, situato al piano terra di una struttura commerciale.

DESCRIZIONE E PARTICOLARITA'

Il negozio misura 253 metri quadrati ed è situato al piano terra di una palazzina commerciale. La soluzione si sviluppa in tre locali ed è dotata di due servizi igienici a norma disabili. L'ambiente è particolarmente luminoso grazie alla presenza di otto grandi vetrine. La struttura è dotata dell’impianto di riscaldamento, dell’impianto di condizionamento, dell’impianto elettrico e quello di illuminazione. La soluzione è munita anche dell’impianto di allarme con videosorveglianza, del sistema di antincendio a idranti. Nell’immobile è inoltre presente la canna fumaria ed è cablato.

UBICAZIONE E CONTESTO

Il complesso è ubicato nel Comune di Truccazzano, poco distante dalla Strada Provinciale SP104, la quale collega il paese ai Comuni limitrofi.

Mostra tutto

Nelle vicinanze

Trasporto pubblico Trasporto pubblico
Cassano d’Adda
Cassano d’Adda
950 m
Via Da Vinci - Via Zappatoni (Cassano d'Adda)
Via Da Vinci - Via Zappatoni (Cassano d'Adda)
260 m
Viale Europa - Via Colombo (Cassano D'Adda)
Viale Europa - Via Colombo (Cassano D'Adda)
270 m
Trecella
Trecella
2,7 Km
Scuole Scuole
Scuole
480 m
Scuola Elementare Guarnazzola
1,5 Km
Liceo Scientifico Linguistico Statale Giordano Bruno
1,8 Km
Scuola Materna
2,3 Km
Farmacia Farmacia
Farmacia Salus
180 m
Farmacia comunale
2,5 Km
Farmacia
2,5 Km
Farmacia Comunale
2,8 Km
Ospedali Ospedali
Azienda Ospedaliera Zappatoni
500 m
Supermercati Supermercati
Coop
760 m
Supermercati
1,0 Km
Bottega del Commercio Equo
3,0 Km
Negozi Negozi
Negozi
880 m
Eva abbigliamento
2,9 Km
Bar Bar
Frulleria Café
780 m
Dopolavoro del Linificio
1,3 Km
Bar
1,4 Km
Mocambo Music Bar
3,0 Km
Ristoranti Ristoranti
Sumo Sushi
540 m
Over 18
550 m
Ristorante Julia
1,1 Km
Isola Lido
1,1 Km
La Vipera Gentile
1,2 Km
Mostra tutto

Caratteristiche

Rif.:
61166274
Piano:
Su più livelli di 1
Totale piani:
1
Posti auto:
30
Condizionamento:
Autonomo
Ascensore:
No
Mostra tutto
Prezzo Prezzo
€ 360.000
Rata mutuo Rata mutuo
€ 1.681 / mese
Spese annue Spese annue
€ 0
Proponi il tuo prezzoProponi il tuo prezzo

Classe Energetica

Questo immobile è esente da classe energetica
Anno di costruzione:
1990
Riscaldamento:
Autonomo
Tipo impianto:
A radiatori
Tipo alimentazione:
Metano

Ti interessa visionare l'immobile?

Fissa un appuntamento  Fissa un appuntamento

Richiedi informazioni

Clicca su Leggi per aprire l'informativa
* Questi campi sono obbligatori

Calcola il tuo mutuo

Semplice e senza impegno
Anticipo

( % )
Mutuo

( % )

pochi semplici passi

inserisci i tuoi dati
Questionario completato
Grazie per aver richiesto un appuntamento senza impegno con un nostro Consulente del Credito e Assicurativo.

Hai inserito correttamente tutti i dati necessari e a breve riceverai una e-mail con un link da convalidare per inviare i tuoi dati.
Affiliato
Industriale Dalmine Srl
Via Provinciale, 21/A 24040 Lallio (BG)

Il nostro staff


  • Alice Cesana Zotti
    Affiliata

  • Mirko Limonta
    Collaboratore

  • Stefania Raimondi
    Coordinatrice

  • Emanuele Sussi
    Affiliato
Via Provinciale, 21/A 24040 Lallio (BG)
Zona: Stezzano - Treviolo - Dalmine - Zingonia - Osio Sotto - Osio Sopra - Boltiere
Mostra su mappa
Affiliato
Industriale Dalmine Srl
Via Provinciale, 21/A 24040 Lallio (BG)

2026 Tecnocasa Franchising S.p.A. - P. IVA 08365160152 - Via Monte Bianco 60/A 20089 Rozzano (MI). Ogni agenzia ha un proprio titolare ed è autonoma. Privacy policy | Policy utilizzo | Cookie policy