Capannone in affitto

Pozzuolo Martesana, Via Pieregrosso
€ 27.000 / mese
1 locale 1 locale
5000 Mq 5000 Mq
3 bagni 3 bagni

Capannone in affitto

Pozzuolo Martesana, Via Pieregrosso

Descrizione annuncio

COSA SAPERE DELL'IMMOBILE

PER INFORMAZIONI ED APPUNTAMENTI CHIAMA 035 717 67 43

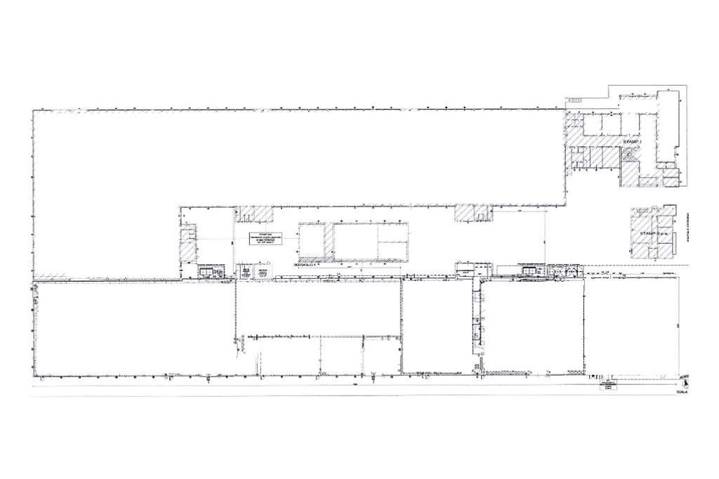
Il capannone proposto in locazione ha una superficie di circa 5.000 metri quadrati circa, di cui circa 150 metri quadri adibiti ad ufficio e ulteriori 2.000 metri quadrati di area esterna esclusiva.

DESCRIZIONE E PARTICOLARITA'
Il capannone misura circa 4.850 metri quadrati e possiede ulteriori 150 metri quadrati di uffici. La soluzione si sviluppa lungo due campate, ha un’altezza di 6,00 metri, con altezza sottotrave di 4,50 metri. L’immobile è accessibile tramite quattro portoni di accesso alti 5,00 metri. Il fabbricato è munito di impianto elettrico, quello di illuminazione e del sistema di allarme. La parte direzionale è dotata anche del riscaldamento e condizionamento. Inoltre, è presente il sistema antincendio a idranti. L’immobile è dotato tre servizi igienici con spogliatoi e docce. La proprietà è interamente recintata e possiede ulteriori 2.000 metri quadrati di area esterna esclusiva.

UBICAZIONE E CONTESTO
Il fabbricato si trova nel Comune di Pozzuolo Martesana. Si affaccia sulla Strada Provinciale SP103 che collega il paese ai Comuni limitrofi. Inoltre, possiede una trentina di parcheggi davanti all’immobile.

Mostra tutto

Nelle vicinanze

Trasporto pubblico Trasporto pubblico
Via Moro - Piazzale Nenni (Pozzuolo Martesana)
Via Moro - Piazzale Nenni (Pozzuolo Martesana)
170 m
Via Pieregrosso - Via Bergamo (Pozzuolo Martesana)
Via Pieregrosso - Via Bergamo (Pozzuolo Martesana)
300 m
stazione di Pozzuolo Martesana
stazione di Pozzuolo Martesana
680 m
Trecella
Trecella
1,4 Km
Scuole Scuole
Scuole
200 m
Scuola secondaria di primo grado Carlo Caccianiga
230 m
Istituto Comprensivo Alessandro Manzoni
250 m
Istituto scolastico comprensivo Alessandro Manzoni
570 m
Primaria Statale Alice Sturiale
1,9 Km
Farmacia Farmacia
Farmacia Morandi
520 m
Farmacia comunale
1,5 Km
Farmacia Comunale
2,9 Km
Ospedali Ospedali
Ospedale Santa Maria delle Stelle
2,8 Km
Supermercati Supermercati
Supermercati
2,6 Km
Negozi Negozi
Negozi
3,0 Km
Bar Bar
Bar
1,5 Km
Ristoranti Ristoranti
Osteria San Rocco
1,4 Km
Ristoranti
1,5 Km
La cueva dei pirati
2,4 Km
Mami Burger & Pizza
2,5 Km
Pizzeria San Michele
3,0 Km
Mostra tutto

Caratteristiche

Rif.:
61156482
Piano:
Terra
Posti auto:
30
Condizionamento:
Assente
Ascensore:
No
Riscaldamento:
Autonomo
Mostra tutto
Prezzo Prezzo
€ 27.000 / mese
Spese annue Spese annue
€ 0

Classe Energetica

Questo immobile è esente da classe energetica
Anno di costruzione:
1980
Riscaldamento:
Autonomo
Tipo impianto:
Ad aria
Tipo alimentazione:
Aria

Ti interessa visionare l'immobile?

Fissa un appuntamento  Fissa un appuntamento

Richiedi informazioni

Clicca su Leggi per aprire l'informativa
* Questi campi sono obbligatori
Affiliato
Industriale Dalmine Srl
Via Provinciale, 21/A 24040 Lallio (BG)

Il nostro staff


  • Alice Cesana Zotti
    Affiliata

  • Mirko Limonta
    Collaboratore

  • Stefania Raimondi
    Coordinatrice

  • Emanuele Sussi
    Affiliato
Via Provinciale, 21/A 24040 Lallio (BG)
Zona: Stezzano - Treviolo - Dalmine - Zingonia - Osio Sotto - Osio Sopra - Boltiere
Mostra su mappa
Affiliato
Industriale Dalmine Srl
Via Provinciale, 21/A 24040 Lallio (BG)

2026 Tecnocasa Franchising S.p.A. - P. IVA 08365160152 - Via Monte Bianco 60/A 20089 Rozzano (MI). Ogni agenzia ha un proprio titolare ed è autonoma. Privacy policy | Policy utilizzo | Cookie policy