Ufficio in vendita

Cassano D'Adda, Via Milano
€ 780.000
4 locali 4 locali
350 Mq 350 Mq
2 bagni 2 bagni

Ufficio in vendita

Cassano D'Adda, Via Milano

Descrizione annuncio

COSA SAPERE DELL'IMMOBILE

PER INFORMAZIONI ED APPUNTAMENTI CHIAMA 02 242 2348

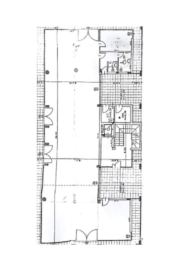
Proponiamo in vendita un ufficio con superficie di 350 metri quadrati, situato al piano terra di una struttura condominiale e ulteriori 435 metri quadrati di area esterna esclusiva.

DESCRIZIONE E PARTICOLARITA'

L’ufficio misura 350 metri quadrati ed è situato al piano terra di una palazzina condominiale chi si sviluppa su quattro livelli. La soluzione è divisa in quattro locali ed è dotata di due servizi igienici, a norma disabili. L'ambiente è particolarmente luminoso grazie alla presenza di sedici grandi vetrine. La struttura è dotata dell’impianto di riscaldamento, l’impianto di elettrico e l’impianto di illuminazione, è presente anche l’impianto d’allarme e il sistema di antincendio a idranti. L’immobile è completamente controsoffittato ed è cablato.

UBICAZIONE E CONTESTO

Il complesso è ubicato nel Comune di Cassano d’ Adda e si affaccia sulla Strada Provinciale SP11exSS11, la quale collega il paese ai Comuni limitrofi. L’immobile gode di circa 16 parcheggi ad uso esclusivo situati di fronte al fabbricato.

Mostra tutto

Nelle vicinanze

Trasporto pubblico Trasporto pubblico
Cassano d’Adda
Cassano d’Adda
1,4 Km
Via Milano - Viale Europa (Cassano d'Adda)
Via Milano - Viale Europa (Cassano d'Adda)
110 m
Via Da Vinci - Via Zappatoni (Cassano d'Adda)
Via Da Vinci - Via Zappatoni (Cassano d'Adda)
300 m
Scuole Scuole
Scuole
230 m
Scuola Elementare Guarnazzola
950 m
Liceo Scientifico Linguistico Statale Giordano Bruno
1,2 Km
Scuola Materna
1,8 Km
Farmacia Farmacia
Farmacia Salus
730 m
Farmacia
2,0 Km
Farmacia comunale
3,0 Km
Ospedali Ospedali
Azienda Ospedaliera Zappatoni
470 m
Supermercati Supermercati
Supermercati
590 m
Coop
650 m
Negozi Negozi
Negozi
670 m
Bar Bar
Frulleria Café
370 m
Dopolavoro del Linificio
910 m
Bar
1,0 Km
Ristoranti Ristoranti
Sumo Sushi
300 m
Over 18
340 m
Ristorante Julia
810 m
La Vipera Gentile
820 m
Ristorante Isola Borromeo
1,0 Km
Mostra tutto

Caratteristiche

Rif.:
61162035
Piano:
Terra di 4
Totale piani:
4
Posti auto:
16
Condizionamento:
Assente
Ascensore:
No
Mostra tutto
Prezzo Prezzo
€ 780.000
Rata mutuo Rata mutuo
€ 3.642 / mese
Spese annue Spese annue
€ 0
Proponi il tuo prezzoProponi il tuo prezzo

Classe Energetica

Questo immobile è esente da classe energetica
Anno di costruzione:
1994
Riscaldamento:
Autonomo
Tipo impianto:
A radiatori
Tipo alimentazione:
Metano

Ti interessa visionare l'immobile?

Fissa un appuntamento  Fissa un appuntamento

Richiedi informazioni

Clicca su Leggi per aprire l'informativa
* Questi campi sono obbligatori

Calcola il tuo mutuo

Semplice e senza impegno
Anticipo

( % )
Mutuo

( % )

pochi semplici passi

inserisci i tuoi dati
Questionario completato
Grazie per aver richiesto un appuntamento senza impegno con un nostro Consulente del Credito e Assicurativo.

Hai inserito correttamente tutti i dati necessari e a breve riceverai una e-mail con un link da convalidare per inviare i tuoi dati.
Affiliato
Industriale Dalmine Srl
Via Provinciale, 21/A 24040 Lallio (BG)

Il nostro staff


  • Alice Cesana Zotti
    Affiliata

  • Mirko Limonta
    Collaboratore

  • Stefania Raimondi
    Coordinatrice

  • Emanuele Sussi
    Affiliato
Via Provinciale, 21/A 24040 Lallio (BG)
Zona: Stezzano - Treviolo - Dalmine - Zingonia - Osio Sotto - Osio Sopra - Boltiere
Mostra su mappa
Affiliato
Industriale Dalmine Srl
Via Provinciale, 21/A 24040 Lallio (BG)

2026 Tecnocasa Franchising S.p.A. - P. IVA 08365160152 - Via Monte Bianco 60/A 20089 Rozzano (MI). Ogni agenzia ha un proprio titolare ed è autonoma. Privacy policy | Policy utilizzo | Cookie policy